鄭州杰凱公司研制的炒Z型斗式上料機,它是將顆粒類物料輸送到一定的高度和水平距離外的其他設備,整個機器運轉平穩,故障率低,輸送過程中不破壞物料自身特性,自動化程度高,可據客戶的配套設備量身定做斗式顆粒提升機。歡迎垂詢訂購!

一、關于z型斗式提升機產品的概況。
用于糧食、食品、飼料、化工行業中顆粒及粉狀物料的垂直提升輸送。Z型斗式上料機可以配有包裝單元的定量自動包裝系統,Z型斗式上料機廣泛應用于食品包裝行業。主要由304不銹鋼和食品級聚丙烯塑料制成。由控制電路及料位控制實現自動進、停。
二、z型斗式提升機產品特點。
1、能夠快速提高材料的水平、垂直高度。
2、可實現電腦控制,自動化程度高;
3、操作簡便,便于維修。
4、斗式上料機抗酸、堿、油性及耐蝕材料。
5.整個機器是由304不銹鋼和聚丙烯塑料食品級材料制成,符合食品行業生產的衛生要求。
6.顆粒物料在運輸中極少損壞,減少材料損耗。
7.振動料斗可以快速、均勻,不堵塞,不會堵塞。
8、z型斗提升機適用輸送的顆粒介質:

三、z型斗提升機技術參數。
動力:0.75-1.5千瓦。
Z型斗式上料機的輸送量:3-8m/h。
輸送帶:1.6L(420*140*70)(PP食品級)
Z型斗式上料機工作電壓:220v/380v50hz。
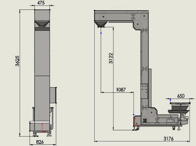
外形尺寸:L2300*W1000*1250mm。
設備重量:500-600公斤。
四、.Z型斗式上料機產品概況:
1.z型斗式提升機全密封設計,不漏塵,生產環境干凈;
2、變頻器調節速度,隨時調節輸送,方便快捷;
3、整機設計結構合理,故障點少,故障率低;
4、可以根據客戶定制。
5、產地廠家直銷,優質產品,售后保證,價格美觀;
6、誘導出料、密實的料斗,Z型斗式上料機在物料提升過程中幾乎無回料,效率高。
7.我們可以根據用戶需要定做不同高度和產量的Z型斗式上料機。
斗式提升機由運動部分(料斗與牽引鏈條)、帶有傳動鏈輪的斗式提升機上部區段、帶有拉緊輪的斗式提升機下部區段、斗式提升機中間機殼、斗式提升機驅動裝置、斗式提升機逆止制動裝置等組成。該斗式提升機的料斗為間斷式布置,利用“掏取法”進行裝載,“離心投料法”卸料。該斗式提升機的牽引機構是兩根環形鏈條。
鄭州市位于河南省中部偏北,北臨黃河,西依嵩山,東南為廣闊的黃淮平原??偯娣e7446.2平方公里,其中市區面積1013.3平方公里。總人口631.6萬,其中市區216.3萬。
鄭州市,轄6個市轄區,代管5個縣級市、1個縣:中原區、二七區、金水區、惠濟區、上街區、管城回族區,鞏義市、新鄭市、登封市、新密市、滎陽市、中牟縣,另設省級新區鄭州新區(含鄭東新區)、1個國家級高新技術產業開發區、1個國家級經濟技術開發區。市人民政府駐中原區中原中路233號。鄭州市總面積7446.2平方公里,人口862.65萬人。
在鄭州選購Z型提升機,請咨詢我司電話13838093755




客服1